
JAVNA DRAŽBA ZA PRODAJO ZEMLJIŠČ NA OBMOČJU OPPN STANOVANJSKA ZAZIDAVA ŽABČE
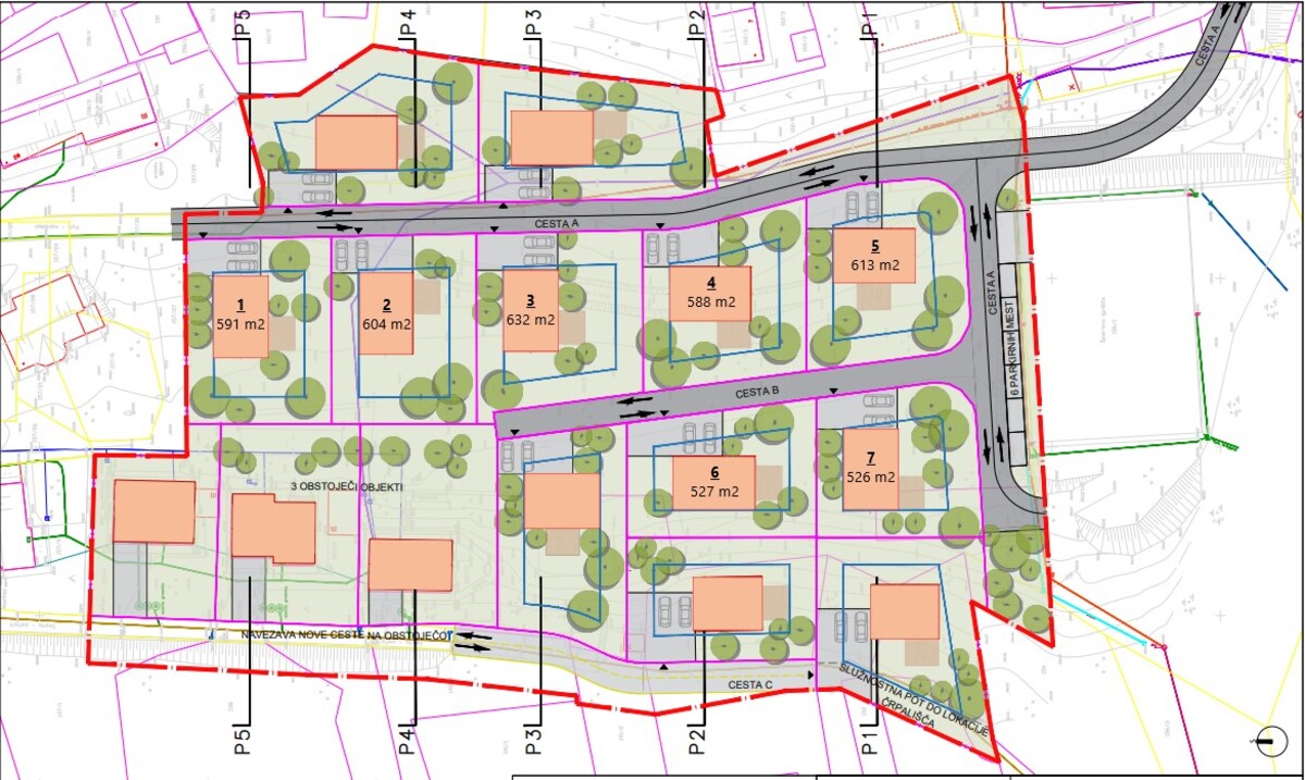
Občina Tolmin je objavila dražbeni razglas za sedem gradbenih parcel na zahodnem robu naselja Žabče. Dražba bo v maju v galeriji Kinogledališča, dražitelji so lahko samo fizične osebe, vsak dražitelj lahko kupi 1 nepremičnino. Izmere parcel se gibljejo med 526 in 632 m2, izklicne cene pa med 24.000 in 29.000 €. Varščino je treba vplačati najkasneje tri dni pred dražbo. Natančne pogoje javne dražbe najdete na spletni strani občine.